Wohnzimmer im modernen Single-Apartment
Es sollte ein Neuanfang werden, in einer schönen hellen Wohnung. Deshalb fanden auch nur wenige Möbel einen Platz, allerdings nur für kurze Zeit. Leicht und hell sollte es sein, mit wenigen, ganz gezielt ausgesuchten Stücken, die die vorhandenen gut ergänzen. Während einer mehrstündigen Einrichtungsberatung wurden dann für alle Bereiche die Lösungen gefunden und durch Frau S. selbstständig umgesetzt. Das Ergebnis spricht für sich, ein einladender Flur und ein leicht möbliertes Wohnzimmer.

Vorher – bunte Mischung 
Beratungsskizze Flur 
Das Sideboard aus dem Wintergarten stand Pate für die blaue Wandfarbe der Nische, die noch mit Bildern komplettiert wird. 
Der schöne Spiegel vergrößert den schmalen Flur und sorgt auch für ein bisschen Grandezza. 
Vorher 
Die neue Garderobe ist jetzt ein weißer hoher Kleiderschrank, mit Stange und Schüben für Schals und Co. 
Daneben steht ein weiterer Kleiderschrank in 40 cm Tiefe. Diesmal ohne Türen, denn hinter dem Vorhang befindet sich die kleine Abstellkammer für Staubi und Co. 
Der Flur ist immer aufgeräumt, super praktisch! 
Für die Gästegarderobe 
vorher – zu viele Möbel und ein Schuhsammelsurium in der nicht gebrauchten Küchentür 
Billy paßt genau in die Tür, alles wirkt gut organisiert und modern 
Vorher 
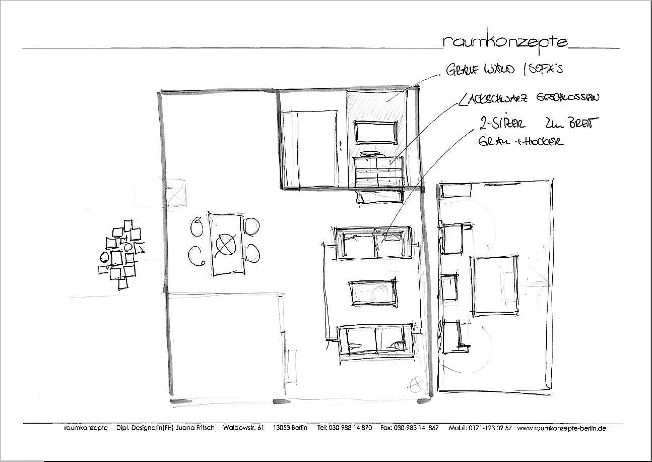
Beratungsskizze Wohnbereich 
Aus der ursprünglich geplanten Sofa-Ecke wurden zwei Soras. Sie erfüllen gleich mehrere Funktionen: kommunikative Sitzposition, Blick nach Draußen, Blick nach Drinnen, zwei Gästebetten und eine lockere Möblierung. 
Das große Bild schaftt die Verbindung zwischen beiden Sofas. 
Vorher 
Ein einladender Wohnbereich 
vorher 

vorher 
Vor der dunkelen Wand ist der Fernseher fast nicht zu sehen 
Polsterhocker werden schnell zu weiteren Sitzplätzen 
Statt eines preisintensiven Sideboards entschied sich Frau S. für einfache Schränke, die im Farbton der Wand gestrichen wurden. Nicht der Preis entscheidet über die Wirkung. Vielen Dank für die tolle Umsetzung dieser mutigen Idee! 
Großartige Wirkung der gesamten Wandgestaltung, und nur mit einer Farbe! 
Dunkle Vorhänge rahmen die Fenster 
Vorher 
Mit Lampen komplettiert 
Fotosammlung am Kühlschrank 
Vor professioneller Dekoration – Der Tresentisch wurde lieblos genutzt 
Nach professioneller Dekoration – er bietet Platz für Obst und Gemüse und einige Weinflaschen, schon besser 
Vorher – was tun mit diesem Raum? 
Beratungsskizze Arbeitsraum 
Das weiße Sidboard aus dem Wohnzimmer wird zum HomeOfficeSchrank. Am Tisch kann gearbeitet aber auch gegessen werden. 

Kleine Deckenleuchte 
Der Teppich in RetroStyle sorgt für angenehme Akkustik und warme Füße. Tolle Farbe! 
Vorher – die Möbel standen richtig, und jetzt? 
Lampen und graue Bettwäsche sorgen für Stimmung 
Vorher 
Beratungsskizze Schlafzimmer 
Neue Nachttische und Lampen rahmen das Bett ein und die beiden schmalen Bilder sorgen für eine harmonische Gestaltung. Da sie sehr tief hängen, ergibt sich eine optische Verbindung zum Bett und gehören dadurch zusammen. 

Die Wand hinter den Kommoden bekommt noch einen grauen Anstrich und eine schöne Bildersammlung, wie im Entwurf. Aber auch jetzt ist es ein ruhiges Schlafzimmer, ideal zum Entspannen. 
Vorher 
Hier steht jetzt das große Sideboard aus dem Flur und bietet ausreichend Stauraum. 
Der neue Spiegel läßt das Bad frischer wirken.
Fotos und Zeichnungen: raumkonzepte

Kommentare
Wohnzimmer im modernen Single-Apartment — Keine Kommentare
HTML tags allowed in your comment: <a href="" title=""> <abbr title=""> <acronym title=""> <b> <blockquote cite=""> <cite> <code> <del datetime=""> <em> <i> <q cite=""> <s> <strike> <strong>